Продажа дома в поселке Назарьево по Рублево-Успенскому шоссе, лот № 59280

Назарьево
Площадь дома 315 м2
Площадь участка 15 соток
Спален спален
Отделка Под ключ
Цена от собственника
Стоимость продажи 160`000`000 руб.$ 2`168`300€ 1`831`101
Хочу посмотреть этот дом
ДОМ
Площадь дома: 315 кв.м
Этажность: 2
Уровней: 2
Фундамент: Монолит
Стены: Блоки
Перекрытия: Монолит
Кровля: Плоская кровля
Отделка: Под ключ
Мебель: Полностью
Абсолютно новый уникальный дом площадью 315 кв. м, построенный по немецкой технологии фахверк на участке 15,3 сотки с вековыми елями и дубами в тихом лесном поселке в 26 км от МКАД по Рублево-Успенскому шоссе.
Стеклянные стены от пола до потолка, потрясающие виды на собственный сад, высокие потолки, высококачественная отделка, эксклюзивное цветовое решение стен, монолитное межэтажное перекрытие и как следствие -отсутствие «торчащих» батарей, межкомнатные стены из пазогребневых блоков.
ДПК Назарьево (бывшие дачи Совмина) - охраняемый посёлок со своей службой сервиса. Тихо, зелено, солидное окружение. В поселке детская площадка, гостевая автостоянка, магазин. В шаговой доступности школа, храм, лес, речка, санаторий Управделами Президента с бассейном, лечебным корпусом и теннисными кортами. В 200 метрах от участка находится великолепные пруды с оборудованной зоной отдыха и прокатом лодок, Хаски-ленд и конный клуб.
Шикарная транспортная доступность: в любое время без пробок 40 минут до Москва-Сити через Северный объезд Одинцово и по проспекту Багратиона. Также можно добираться по Рублево-Успенскому или Минскому шоссе.
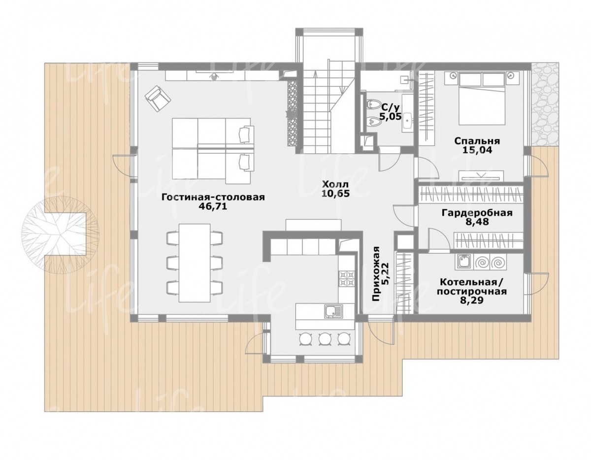
ПЛАНИРОВКА
1 этаж: прихожая (5,2), холл (10,7), гардеробная (8,5), гостевой с/у (5,1), гостиная-столовая (46,7), гостевая спальня (15), котельная-постирочная (8,3).
2 этаж: мастер-спальня (26,5) с гардеробной (9,3), ванной (12,7) и балконом (3,2), детская №1 (24,9), детская №2 (19,2) с гардеробной (4,8). Обе комнаты с выходом
на балкон (3,2). С/у (6,2), холл (9,4).
УЧАСТОК
Площадь участка: 15.30 соток
Ландшафт: Лесной
КОММУНИКАЦИИ
Газ: Магистральный
Электричество: 15 кВт
Водоснабжение: Центральное
Канализация: Центральная

На карте

Похожие предложения

Лот 4418
Продажа дома Назарьево 315 м² Рублево-Успенское шоссе - РАПС - 4418
4418
165 000 000 руб.
$ 2 236 100
€ 1 888 323
Рублево-Успенское шоссе, 24 км
Площадь дома 822 м2
Площадь участка 15 соток
Спален 6 спален
Отделка Под ключ
Бассейн Бассейн
 
Лот 5480
Продажа дома Назарьево 315 м² Рублево-Успенское шоссе - Поречье Дачное - 5480
5480
200 000 000 руб.
$ 2 710 400
€ 2 288 877
Рублево-Успенское шоссе, 29 км
Площадь дома 595 м2
Площадь участка 42 сотки
Спален 5 спален
Отделка Под ключ
Бассейн Бассейн
 
Лот 31295
Продажа дома Назарьево 315 м² Рублево-Успенское шоссе - Лесное Подворье - 31295
31295
129 000 000 руб.
$ 1 748 200
€ 1 476 326
Рублево-Успенское шоссе, 28 км
Площадь дома 400 м2
Площадь участка 15 соток
Спален 5 спален
Отделка Под ключ
Лот 33785
Продажа дома Назарьево 315 м² Рублево-Успенское шоссе - Лесные Дали М - 33785
33785
135 000 000 руб.
$ 1 829 500
€ 1 544 992
Рублево-Успенское шоссе, 28 км
Площадь дома 400 м2
Площадь участка 15 соток
Спален 4 спальни
Отделка Под ключ
Бассейн Бассейн
 
Лот 38933
Продажа дома Назарьево 315 м² Рублево-Успенское шоссе - Маслово-2 - 38933
38933
130 000 000 руб.
$ 1 761 800
€ 1 487 770
Рублево-Успенское шоссе, 25 км
Площадь дома 770 м2
Площадь участка 31 сотка
Спален 5 спален
Отделка Под ключ
Бассейн Бассейн
 
Лот 46412
Продажа дома Назарьево 315 м² Рублево-Успенское шоссе - Успенское НПСЗУ - 46412
46412
195 000 000 руб.
$ 2 642 700
€ 2 231 655
Рублево-Успенское шоссе, 24 км
Площадь дома 600 м2
Площадь участка 24 сотки
Спален 5 спален
Отделка Под ключ
Бассейн Бассейн
 
Лот 47084
Продажа дома Назарьево 315 м² Рублево-Успенское шоссе - Николино - 47084
47084
175 000 000 руб.
$ 2 371 600
€ 2 002 767
Рублево-Успенское шоссе, 24 км
Площадь дома 660 м2
Площадь участка 11 соток
Спален 6 спален
Отделка Под ключ
Лот 54123
Продажа дома Назарьево 315 м² Рублево-Успенское шоссе - Дубцы - 54123
54123
170 000 000 руб.
$ 2 303 900
€ 1 945 545
Дубцы
Рублево-Успенское шоссе, 25 км
Площадь дома 826 м2
Площадь участка 26 соток
Спален 7 спален
Отделка Под ключ
Бассейн Бассейн
 
Лот 55711
Продажа дома Назарьево 315 м² Рублево-Успенское шоссе - Горышкино - 55711
55711
154 954 000 руб.
$ 2 100 000
€ 1 773 357
Горышкино
Рублево-Успенское шоссе, 25 км
Площадь дома 782 м2
Площадь участка 17 соток
Спален 5 спален
Отделка Под ключ
Бассейн Бассейн
 
Лот 56999
Продажа дома Назарьево 315 м² Рублево-Успенское шоссе - Зеленая роща 1 - 56999
56999
145 000 000 руб.
$ 1 965 000
€ 1 659 436
Минское шоссе, 31 км
Площадь дома 400 м2
Площадь участка 24 сотки
Спален 4 спальни
Отделка Под ключ
Бассейн Бассейн
 
Лот 57341
Продажа дома Назарьево 315 м² Рублево-Успенское шоссе - Лесные Дали-3 - 57341
57341
137 500 000 руб.
$ 1 863 400
€ 1 573 603
Рублево-Успенское шоссе, 28 км
Площадь дома 450 м2
Площадь участка 15 соток
Спален 3 спальни
Отделка Под ключ
Лот 57474
Продажа дома Назарьево 315 м² Рублево-Успенское шоссе - Лесные Дали-3 - 57474
57474
150 000 000 руб.
$ 2 032 800
€ 1 716 658
Рублево-Успенское шоссе, 28 км
Площадь дома 880 м2
Площадь участка 15 соток
Спален 3 спальни
Отделка Под ключ
Лот 57745
Продажа дома Назарьево 315 м² Рублево-Успенское шоссе - Молоденово - 57745
57745
139 000 000 руб.
$ 1 883 700
€ 1 590 769
Молоденово
Рублево-Успенское шоссе, 24 км
Площадь дома 540 м2
Площадь участка 13 соток
Спален 5 спален
Отделка Под ключ
Лот 57746
Продажа дома Назарьево 315 м² Рублево-Успенское шоссе - Молоденово - 57746
57746
135 000 000 руб.
$ 1 829 500
€ 1 544 992
Молоденово
Рублево-Успенское шоссе, 24 км
Площадь дома 481 м2
Площадь участка 12 соток
Спален 5 спален
Отделка Под ключ
Лот 58478
Продажа дома Назарьево 315 м² Рублево-Успенское шоссе - Николино - 58478
58478
202 916 000 руб.
$ 2 750 000
€ 2 322 254
Рублево-Успенское шоссе, 24 км
Площадь дома 425 м2
Площадь участка 15 соток
Спален 4 спальни
Отделка Под ключ
Лот 58714
Продажа дома Назарьево 315 м² Рублево-Успенское шоссе - Чигасово - 58714
58714
155 000 000 руб.
$ 2 100 600
€ 1 773 880
Рублево-Успенское шоссе, 27 км
Площадь дома 600 м2
Площадь участка 13 соток
Спален 4 спальни
Отделка Под ключ
Избранное: 0
Ganhe Rápido nos Jogos Populares do Cassino Online 580bet Cassino bet 7k: Diversão e Grandes Vitórias Esperam por Você Aposte e Vença no Cassino leao – Jogos Fáceis e Populares Jogos Populares e Grandes Prêmios no Cassino Online luck 2 Descubra os Jogos Mais Populares no Cassino john bet e Ganhe 7755 bet: Apostas Fáceis, Grandes Oportunidades de Vitória Jogue no Cassino Online cbet e Aumente suas Chances de Ganhar Ganhe Prêmios Incríveis com Jogos Populares no Cassino bet7 Cassino pk55: Onde a Sorte Está ao Seu Lado Experimente o Cassino 8800 bet e Ganhe com Jogos Populares Ganhe Facilmente no Cassino Online doce Aposte e Vença no Cassino bet 4 Jogos Populares e Grandes Premiações na f12bet Descubra a Diversão e Vitória no Cassino bet7 Aposte nos Jogos Mais Populares do Cassino ggbet Ganhe Prêmios Rápidos no Cassino Online bet77 Jogos Fáceis e Rápidos no Cassino mrbet Jogue e Ganhe com Facilidade no Cassino bet61 Cassino tvbet: Onde a Sorte Está Ao Seu Lado Aposte nos Melhores Jogos do Cassino Online pgwin Ganhe Grande no Cassino today com Jogos Populares Cassino fuwin: Grandes Vitórias Esperam por Você Experimente os Melhores Jogos no Cassino brwin Jogue e Ganhe no Cassino bet7k – Simples e Rápido Cassino tv bet: Vença com Jogos Populares e Simples Ganhe no Cassino Online allwin com Facilidade Aposte nos Jogos Mais Famosos no Cassino stake bwin 789: Aposta Fácil, Vitória Garantida Descubra os Jogos Populares do Cassino lvbet e Vença Jogue no Cassino blaze e Ganhe Grandes Prêmios Cassino dj bet: Simples, Divertido e Lucrativo Aposte e Ganhe no Cassino umbet – Diversão Garantida Ganhe Rápido nos Jogos do Cassino Online b1bet 20bet: Jogue e Ganhe com Facilidade e Diversão Cassino bk bet: Entre Agora e Ganhe Grandes Prêmios Jogue no Cassino h2bet e Conquiste Grandes Vitórias Ganhe no Cassino 7kbet com Jogos Populares e Fáceis Aposte e Conquiste Prêmios no Cassino Online fbbet Diversão e Prêmios Fáceis no Cassino 9d bet Cassino Online 9k bet: Jogos Populares, Grandes Oportunidades Jogue no Cassino 73 bet e Aumente Suas Chances de Vitória Cassino ktobet: Onde Você Pode Ganhar Facilmente Ganhe Rápido com os Jogos Populares do Cassino 74 bet Aposte nos Melhores Jogos e Ganhe no Cassino betpix betvip: Onde a Sorte Encontra os Melhores Jogadores Jogue no Cassino batbet e Ganhe Prêmios Instantâneos Ganhe Agora nos Jogos do Cassino Online onabet Cassino f12bet: Diversão e Vitórias Esperam por Você Aposte Agora no Cassino codbet e Ganhe com Facilidade Jogos Populares do Cassino winbra para Você Ganhar Ganhe Grande com os Jogos Mais Populares no b2xbet Cassino obabet: Jogue Agora e Conquiste Grandes Vitórias Experimente a Diversão e Ganhe no Cassino Online brlwin Jogue nos Melhores Jogos e Vença no Cassino onebra Ganhe Prêmios Fáceis e Rápidos no Cassino winbrl Aposte nos Jogos Populares do Cassino omgbet e Ganhe Cassino queens: Grandes Oportunidades de Vitória Ganhe Facilmente com os Jogos do Cassino Online brdice brapub: Aposte Agora e Conquiste Grandes Vitórias Aposte e Ganhe com Facilidade no Cassino Online flames Ganhe Dinheiro Fácil nos Jogos do Cassino betano Cassino aajogo: Jogos Populares e Grandes Prêmios Jogue e Vença no Cassino iribet – Onde a Sorte Está Aposte no Cassino pixbet e Ganhe Prêmios Fantásticos Ganhe Grande nos Jogos Populares do Cassino betsul Cassino Online fezbet: Onde Você Sempre Pode Ganhar Aposte nos Melhores Jogos e Ganhe no Cassino curso beta betway: Jogue e Ganhe Agora com Facilidade Experimente o Cassino Online bkbet e Ganhe Rápido Ganhe Dinheiro Jogando nos Jogos Populares do Cassino peixe beta Jogue no Cassino bet365 e Ganhe de Forma Simples e Rápida Ganhe No Cassino pixbet: Jogos Populares, Grandes Prêmios Aposte Agora e Conquiste Vitórias no Cassino 4 play bet Ganhe no Cassino Online 365bet: Diversão e Vitória Cassino brxbet: Aposte com Facilidade e Ganhe Prêmios Aposte no Cassino 939 bet e Vença Agora Mesmo Cassino seubet: Ganhe Jogando os Melhores Jogos Jogue no Cassino Online cnc bet e Aumente Suas Chances Ganhe com Facilidade nos Jogos Populares do gbg bet Jogue e Vença no Cassino 522bet – O Melhor para Você Cassino Online brl bet: Apostas Fáceis, Grandes Vitórias Ganhe com Facilidade no Cassino Online pagbet Aposte no Cassino jonbet e Experimente a Diversão jqk bet: Jogue e Ganhe com Prêmios Instantâneos Ganhe Dinheiro Fácil nos Jogos do Cassino 166bet Cassino Online abc bet: Onde os Jogos Populares Levam à Vitória Aposte e Ganhe Agora nos Jogos do Cassino bggbet Jogos Populares e Grandes Oportunidades de Vitória na obabet Cassino 136bet: Onde Você Pode Ganhar Rápido e Fácil Ganhe Agora nos Jogos Populares do Cassino mmabet Aposte Agora no Cassino win bet e Conquiste Grandes Vitórias Jogue nos Jogos Mais Populares e Ganhe no Cassino ir6 bet Cassino 667bet: Jogue e Conquiste Vitórias Rápidas Ganhe no Cassino Online qqq bet com Jogos Simples e Populares 193 bet: Apostas Fáceis, Grandes Chances de Ganhar Ganhe Prêmios Rápidos e Simples no Cassino dobrowin Aposte nos Melhores Jogos e Vença no Cassino betleao Jogue e Ganhe no Cassino moverbet com Facilidade Ganhe Agora no Cassino Online winzada 777 com Jogos Populares supremo: Apostas Fáceis e Grandes Vitórias Aposte nos Jogos Populares do Cassino casadeapostas e Vença Cassino dobrowin: Grandes Premiações com Jogos Fáceis Ganhe no Cassino betleao com Jogos Populares e Simples Jogue e Vença Agora no Cassino moverbet wazamba: Aposte e Ganhe Grande nos Jogos Populares Cassino Online fezbet: Simples, Divertido e Lucrativo Ganhe Agora nos Jogos Populares do Cassino betsson Aposte e Vença no Cassino lvbet – Jogue e Ganhe dobrowin: Onde Você Joga e Ganha Com Facilidade Ganhe Rápido e Fácil no Cassino Online betsul Ganhe Fácil no Cassino Online pixbet Aposte e Vença com Jogos Populares no bwin Jogos Fáceis, Grandes Vitórias no Cassino betobet dobrowin: Apostas Simples, Grandes Premiações Ganhe Agora nos Jogos Populares do Cassino bet7 Aposte nos Melhores Jogos e Ganhe no Cassino betcris Jogue e Conquiste Grandes Prêmios no blaze Ganhe Rápido com Jogos Populares no Cassino 888 Cassino betano: O Melhor Lugar para Apostar e Ganhar Jogue Agora e Ganhe no Cassino Online stake stake: Onde a Sorte Encontra os Melhores Jogadores Ganhe Facilmente com os Jogos do Cassino esportesdasorte Aposte e Vença no Cassino Online betmotion Jogue nos Jogos Populares e Ganhe no rivalry Aposte no novibet e Ganhe Grandes Prêmios Cassino pinnacle: Grandes Vitórias com Jogos Populares Ganhe Agora com os Jogos do Cassino cbet Aposte e Conquiste Vitórias no dobrowin betleao: Onde Grandes Vitórias São Fáceis de Alcançar Ganhe Prêmios Rápidos no Cassino moverbet Jogos Populares e Grandes Oportunidades no Cassino gogowin jogos win: Vença com Jogos Populares e Rápidos Aposte no Cassino campobet e Ganhe Grande Ganhe Facilmente com os Jogos do Cassino mesk bet Cassino infinity bet: Onde Jogadores Conquistam Prêmios Jogue Agora no Cassino betfury e Ganhe Facilmente Aposte com Facilidade e Ganhe no doce Ganhe Jogando os Melhores Jogos no bet7k Jogue e Vença no Cassino Online jogowin lobo888: Aposte Agora e Ganhe Grandes Vitórias Ganhe Agora no Cassino iribet com Facilidade Jogue e Conquiste Prêmios no Cassino Online leao dobrowin: Onde a Sorte Está ao Seu Lado Aposte e Ganhe Grandes Prêmios no allwin Ganhe Grandes Prêmios Jogando no aajogo Jogos Populares e Grandes Oportunidades no pgwin Ganhe Fácil com os Jogos Populares do Cassino greenbets Aposte no brapub e Vença com Jogos Populares Cassino moverbet: Aposte Agora e Ganhe Facilmente Ganhe Agora com os Jogos Populares do onebra Jogue e Vença Agora no Cassino flames Ganhe Rápido com os Jogos do Cassino brdice brwin: Jogos Populares e Grandes Vitórias Aposte nos Jogos Populares e Ganhe no poplottery queens: Grandes Prêmios Esperam por Você Jogue Agora no winbrl e Ganhe Fácil Aposte e Ganhe Prêmios Rápidos no Cassino omgbet Ganhe no winbra com Jogos Populares e Simples Aposte e Ganhe no Cassino goinbet Agora Jogue Agora e Ganhe no codbet com Facilidade betleao: Onde a Sorte Se Encontra com Você Ganhe Rápido e Fácil no Cassino fuwin allwin568: Aposte Agora e Ganhe com Facilidade Ganhe Grande no Cassino wingdus Aposte no juntosbet e Conquiste Grandes Vitórias today: Onde Jogadores Ganham com Facilidade Jogue no talon777 e Ganhe com Simplicidade Ganhe Agora no Cassino Online brlwin com Facilidade Aposte e Vença no fazobetai – O Cassino dos Vencedores pinup bet: Ganhe Rápido com os Melhores Jogos Aposte nos Melhores Jogos no bet sport e Ganhe Ganhe no bet esporte com Jogos Fáceis e Populares mrbet: O Cassino Online Onde Você Ganha Fácil Ganhe no Cassino premier bet com Jogos Populares e Fáceis Jogue e Vença no Cassino apostebet Agora Aposte e Ganhe no spicy bet com Jogos Fáceis Ganhe no prosport bet com Jogos Simples e Populares Aposte e Conquiste Grandes Vitórias no bet nacional Jogue Agora no luck e Ganhe Prêmios Rápidos jogodeouro: Apostas Fáceis e Grandes Oportunidades de Vitória Ganhe no heads bet com Facilidade nos Jogos Populares Aposte no marjack bet e Ganhe Agora com Facilidade Jogue no apostaganha e Ganhe Prêmios Instantâneos gbg bet: Onde Você Sempre Ganha Ganhe Fácil no Cassino esoccer bet com Jogos Populares Aposte e Ganhe Grande no Cassino Online esport bet Ganhe Agora com Jogos Populares no realbet Jogue no aposte e ganhe e Conquiste Vitórias Rápidas aviator aposta: Apostas Fáceis, Prêmios Incríveis Ganhe no bet vitoria com Facilidade e Diversão Aposte e Ganhe no imperador bet – Apostas Populares Jogue no realsbet e Ganhe Prêmios Rápidos e Fáceis Ganhe Agora com os Jogos do Cassino bet favorita Cassino esportenet: Grandes Vitórias Esperam por Você Aposte no flames bet e Conquiste Grandes Prêmios Ganhe Fácil no pague bet com Jogos Populares Jogue Agora no betsury e Ganhe Grande doce888: Onde Você Joga e Ganha com Facilidade Ganhe Grande no Cassino obabet Agora Jogue no winzada e Ganhe Prêmios Fantásticos Aposte e Ganhe no Cassino globalbet – O Melhor Lugar bet77: Onde Jogos Populares Levam à Vitória Ganhe Rápido com os Jogos do Cassino Online lottoland Aposte e Vença Agora no 7gamesbet Jogue no dicasbet e Conquiste Vitórias Fáceis Ganhe Agora com os Jogos do Cassino esportivabet Aposte no tvbet e Ganhe Rápido sportbet: Apostas Fáceis com Grandes Resultados Ganhe Grande no Cassino misterjackbet com Jogos Populares Jogue no Cassino esportebet e Ganhe de Forma Simples e Rápida Ganhe Rápido no Cassino Online nacionalbet Aposte e Vença no simplesbet com Jogos Populares betestrela: Cassino Online Fácil de Jogar e Ganhar Jogos Populares, Grandes Premiações no batbet Ganhe Fácil no Pk55 – O Cassino Online dos Vencedores Aposte e Conquiste Vitórias no Cassino Bet61 Upsports Bet: Diversão e Grandes Ganhos com Jogos Populares Ganhe Agora no roleta online com Jogos Simples e Populares Jogue no roleta e Vença com Facilidade Cassino Online poker online: Onde Você Pode Ganhar Agora poker: Onde Jogadores Conquistam Grandes Vitórias Ganhe Fácil no Cassino Online blackjack online com Jogos Populares Aposte no bingo e Ganhe Rápido com Jogos Famosos Ceará: Apostas Rápidas, Vitórias Imediatas Ganhe Prêmios Fantásticos com Jogos Populares no Paysandu Juventude: O Melhor Cassino Online para Ganhar Jogue e Vença no Cassino Online Bahia com Facilidade Sport: Grandes Oportunidades de Ganhar nos Jogos Populares Aposte no Cassino Cuiabá e Conquiste Grandes Prêmios Ganhe Rápido no Coritiba – Apostas Fáceis, Grandes Prêmios Jogos Fáceis e Grandes Vitórias no Criciúma Aposte no Vitória e Ganhe Com Facilidade nos Jogos Populares Fortaleza: Onde a Sorte Está ao Seu Lado Ganhe no Corinthians – Simples, Rápido e Divertido Jogue Agora e Vença no Cassino São Paulo Ganhe Agora no Cassino Online Vasco com Jogos Populares Aposte e Ganhe no Cassino Online Grêmio Fluminense: Onde Você Joga e Ganha com Facilidade Ganhe no Cassino Cruzeiro com Jogos Populares e Fáceis Botafogo: Ganhe Rápido com Jogos Populares Cassino Flamengo: Vença Agora com Facilidade Ganhe Agora com Jogos Populares no Cassino bingo slots slots slots: Cassino Online Rápido e Simples de Ganhar Aposte nos Jogos Populares e Ganhe no Cassino hacker do slot pg slot demo: O Cassino Online Mais Fácil de Ganhar Jogue e Vença Agora no slot win – Cassino Online Fácil pg slot soft: Ganhe Grandes Prêmios com Jogos Fáceis Cassino arne slot: Onde Você Pode Ganhar com Facilidade Aposte Agora e Vença no Cassino Online riqueza slots slots 777: Jogos Populares, Grandes Vitórias Ganhe Agora no pg slot com Facilidade nos Jogos Populares Jogue e Ganhe no 777 slot game com Apostas Simples slot pg soft: Aposte Agora e Ganhe Rápido Aposte e Vença nos Jogos Populares do Cassino hacker slot Ganhe no 777 slots – Diversão e Grandes Prêmios Jogue e Conquiste Vitórias no slot-pg-soft com Facilidade Ganhe Prêmios Fáceis no Cassino Online fortune ox demo grátis demo fortune ox: Apostas Fáceis e Grandes Oportunidades Jogue no fortune mouse demo e Ganhe com Facilidade nos Jogos Populares fortune ox demo: Onde a Sorte Está ao Seu Lado para Ganhar Ganhe Grande no Cassino jogo fortune tiger com Jogos Populares Cassino Online fortune tiger grátis: Ganhe Fácil e Rápido Jogue Agora e Ganhe Prêmios Rápidos no fortune tiger baixar fortune tiger demo grátis: O Cassino Mais Fácil para Ganhar Aposte e Ganhe Rápido com Jogos Populares no fortune tiger demo Ganhe Fácil no fortune tiger 777 com Jogos Simples e Rápidos!